LogoEcoplans1

Dessinateur Projeteur

Economiste de la Construction

Collaborateur d'Architecte

m2 BoutonAccueil14 BoutonAccueil16 BoutonAccueil10 BoutonAccueil12 BoutonAccueil17 BoutonContact2

TARIF

A partir de 450 €

Nous vous fournirons un devis aprés une première visite, le prix varie en fonction de la complexité de la construction, de la difficulté d'accés aux différentes parties du bâtiment, de l'encombrement intérieur (vide ou meublé) ...

Relevés TEFFRI St Martin 180605  (glissé(e)s)

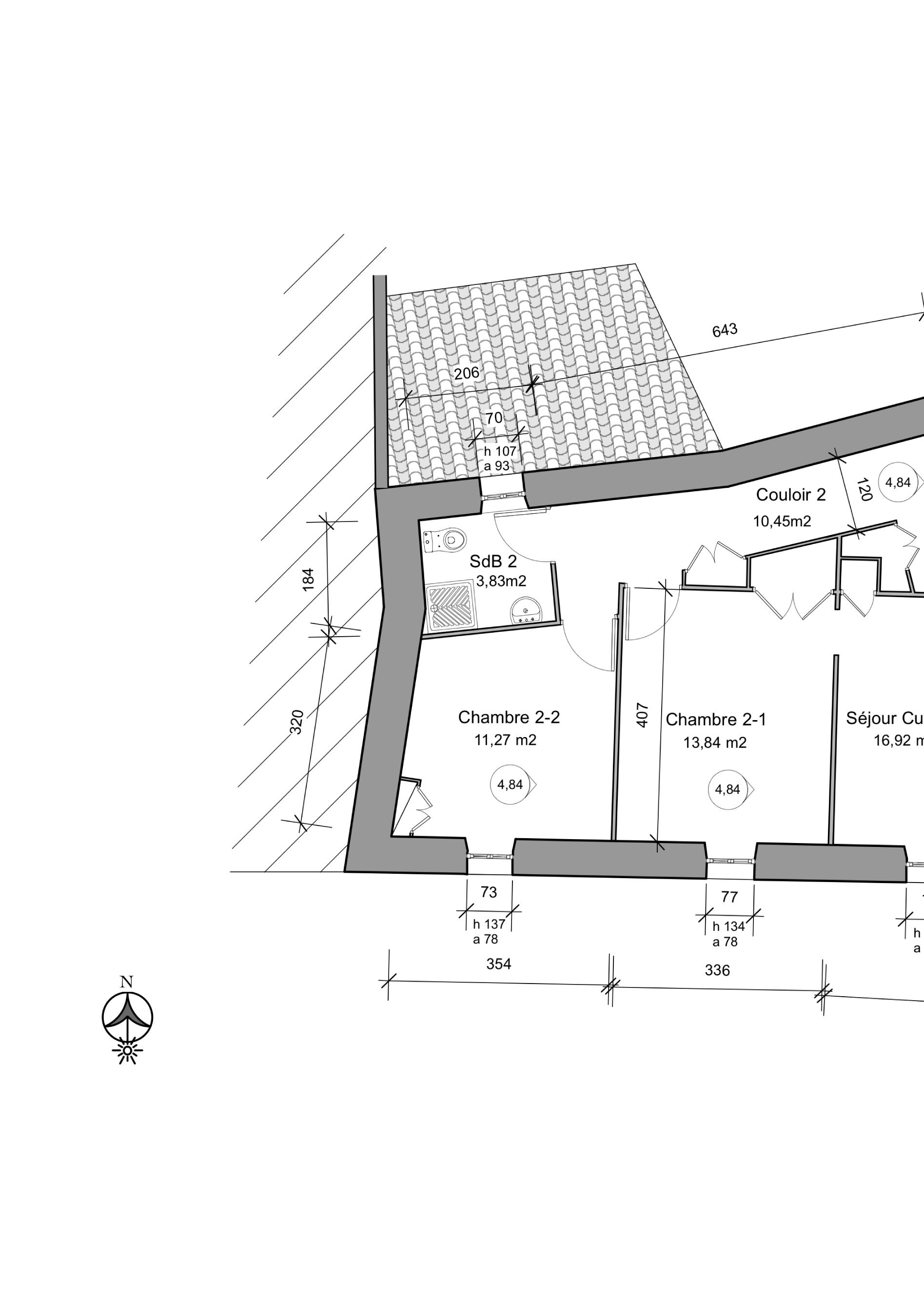
Pour vendre un appartement, vous devez connaître la surface du logement. Pour réaliser des travaux de transformation, il est indispensable de disposer des plans de votre habitation.
 

Les plans existants peuvent être anciens, dépassés, peu précis, voire incomplets.

J'établis un relevé complet à l’échelle 1/100 de l’état existant :

- Plans de tous les étages
- Coupes significatives
- Façades

 

Il vous sera remis à l’issue de la mission :

- un jeu de plans imprimé
- un CD contenant les plans au format informatique DWG

- A votre demande, nous établirons un descriptif de l’état des lieux comprenant si nécessaire des recommandations pour une étude structurelle plus approfondie. (tarif à convenir suivant bâtiment)

RELSteEuph

RELEVÉS ET PLANS DE CONSTRUCTIONS EXISTANTES

Eric Mousseaux

04160 - Château-Arnoux

Tel 04 92 64 58 24 / 06 68 68 58 24

Fax 09 56 55 42 24